Luxury Apartment. Unbeatable Location

9 Madeira Lane

2

2

1

2

2

1


share

Marketed by Harry Taylor & Ling Gao

Luxury Apartment. Unbeatable Location


9 Madeira Lane

Grafton, Auckland

$775 / Week  

Marketed by Harry Taylor & Ling Gao

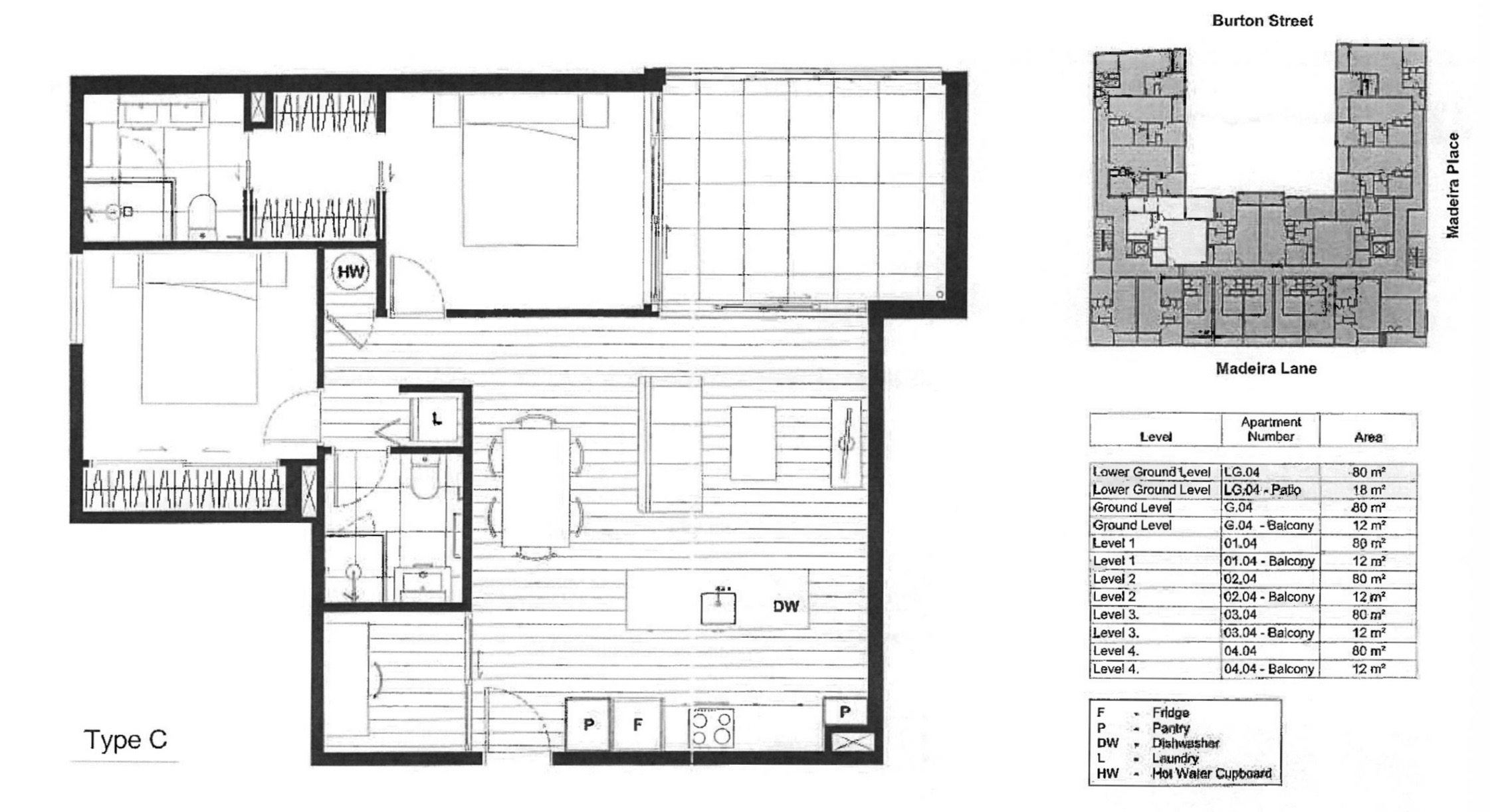
Experience the perfect blend of luxury, lifestyle, and location in this beautifully designed 2-bedroom + flexi room, 2-bathroom apartment with secure parking in the sought-after Neo Building. Situated moments from Auckland's CBD, top schools, motorway ramps, and Les Mills Newmarket - this home offers the ultimate in convenience and contemporary living.

Step inside to discover a spacious open-plan living area that flows effortlessly to a covered patio with outdoor heating, ideal for year-round entertaining. Mature landscaping surrounds the patio, providing a stunning green outlook and ensuring privacy for the living and bedroom areas. The premium Bosch kitchen features sleek finishes, an island bench, and abundant storage, making it as functional as it is stylish. As a bonus, whiteware is included - washer/dryer combo and fridge.

The luxurious master suite opens directly to the patio and includes a generous walk-through wardrobe and elegant ensuite bathroom. A second double bedroom and second full bathroom provide excellent flexibility for guests or family. The additional flexi room provides for a fabulous work from home space. Complete with a secure garage carpark, storage locker & bike parking. Additional street parking options available. This home offers effortless modern living in one of Auckland's most desirable city-fringe locations.

*Virtually staged. Pets negotiable.

Property Details

Property ID RMU44372

Available
24-11-2025
Category
Apartment
Status
Current
Bedrooms
2
Bathrooms
2
Garaging
1
Rent
$775 / Week
Bond
$3100
Pets
Yes
Furnished
No
Smokers
No

Features



Local Schools

* While every effort has been made to ensure the information displayed is accurate, please check details directly with the school before making decisions based on this information.

Primary
Intermediate
Secondary
Newmarket School - 1.2km away
Years 1-6
Co-ed
7 Gillies Avenue
09 520 2959


Kowhai Intermediate - 1.6km away
Years 7-8
Co-ed
26 Onslow Road
09 846 7534


Auckland Grammar - 810m away
Year 9-15
Boys
Mountain Road
09 623 5400


Auckland Girls' Grammar School - 1.1km away
Year 9-15
Girls
Howe Street
09 307 4180



Show on map

Make an Appointment

Send an enquiry about this property to the agent


Harry Taylor


Head of New Business & Letting

Mobile: +6422 560 3069

Ling Gao


Head of Property Management

Mobile: +6421 588 048